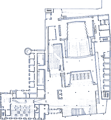
jyväskylä art and music center
competition
jyväskylä, finland

ground floor plan

 

 

The civic nature of the new Music and Arts Center, as well as the relative homogeneity of the contextual surfaces have led us to the selection of a rather limited and elemental palette of materials.

model view